79 Amaroo Drive, Smiths Lake
Luxury living on the water’s edge























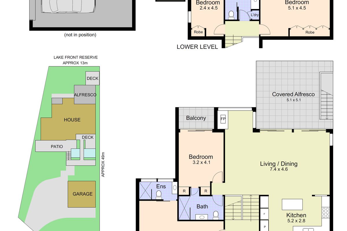
Description
Bespoke in design, timeless in appeal, and perfectly positioned on the lakefront reserve, welcome to 79 Amaroo Drive - one of Smiths Lake’s most exceptional homes.
Sparkling water views greet you the moment you step inside and follow you through every room, creating an atmosphere that is both calming and inspiring.
Whether you’re seeking a peaceful retreat, a place to gather with family and friends, or your next forever home, this stunning sanctuary on Smiths Lake offers the ultimate lakeside lifestyle.
• Beautifully crafted with soaring ceilings, exposed beams and custom windows that frame the lake, this home blends comfort, sophistication and relaxed lakeside living
• Open plan living with timber floors and a cosy combustion fireplace flows seamlessly to landscaped outdoor spaces perfect for entertaining
• The chef's kitchen features stone benchtops, bi-fold servery windows, and premium appliances - including an Italian Portofino Smeg 90cm oven with gas cooktop and rangehood – blending functionality with style
• Four bedrooms, three luxurious bathrooms, a private sauna and a large detached double garage plus additional off-street parking for four cars ensure space, comfort and storage for family and guests alike
— A Home Made for Entertaining —
Every outdoor space has been thoughtfully designed to complement the home, creating inviting areas for relaxing and entertaining. Start the day with breakfast at the servery bar, a game of pool on the lower terrace, watch the kids fish & swim from the lakeside deck, then end the day with a movie projected ‘under the stars’ on the manicured lawn.
— Location & Lifestyle —
Set in a magical waterfront setting, 79 Amaroo Drive offers a peaceful, relaxed retreat while remaining just minutes from the iconic Blueys and Boomerang Beaches. Every day here feels like a holiday - from tranquil mornings on the water to evenings enjoying unforgettable sunsets.
This is a truly special home and a rare opportunity to secure one of Smiths Lake’s most enviable waterfront properties – where memories are made and the beauty of lakeside living can be enjoyed to the fullest.
Inspections by appointment or as per advertised times.
* All information contained herein is gathered from sources we consider to be reliable. However we cannot guarantee its accuracy and interested persons should rely on their own enquiries.
* Please note that drone/location/lifestyle images have been used in this advertisement.
Heating & Cooling
Outdoor Features
Indoor Features
Other Features
Sauna, slow combustion fireplace, gas HWS, ceiling fans
Your email address will not be published. Required fields are marked *